The container house K complements a traditional thatched roof house on the Danish island of Møn to form a new ensemble. The old house is being converted into an art gallery, while the extension created by the containers provides living space for a family of three (gross floor area 170 to 200 m²).
Transition from the new gallery, living, dining, and working areas are on the lower level, while the bedrooms and bathroom are on the upper level, accessible via a staircase that doubles as shelving. The terraces are enclosed by a screen made of wooden elements and protected from the sun.
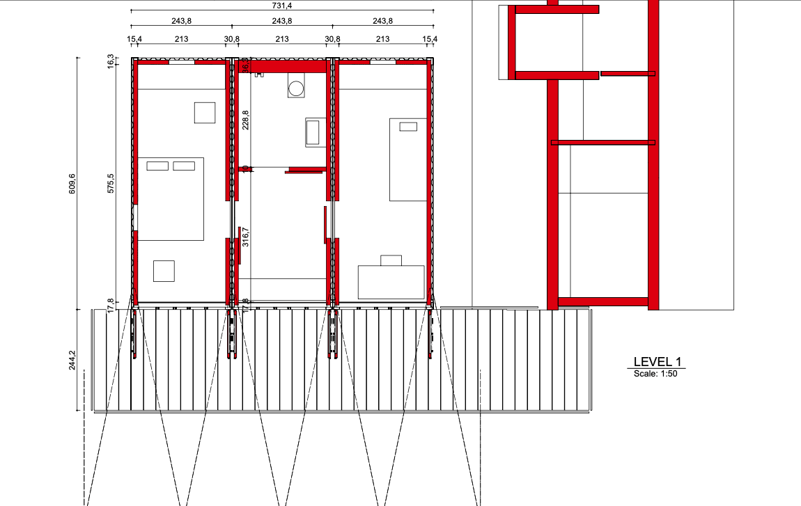
The containers are insulated on the inside, allowing them to remain transportable for relocation.
Das Container-Wohnhaus K ergänzt ein traditionelles Reetdach-Haus auf der daenischen Insel Møn zu einem neuen Ensemble. Das alte Haus wird umgebaut zu eine Kunstgalerie, die Erweiterung durch die Container schaffen Wohnraum für eine dreiköpfige Familie (BGF 170 bis 200 m²).
Übergang von der neuen Galerie, Wohnen, Essen und Arbeiten sind in der unteren Ebene, die Zimmer und Bad sind in der oberen Ebene angeordnet, erreichbar über ein Treppenmöbel – eine Sambatreppe die gleichzeitig als Regal nutzbar ist. Die Terrassen sind über einen Screen aus Holzelementen räumlich gefasst und sonnengeschützt.
Die Dämmung der Container erfolgt innenseitig - die Container bleiben transportfähig für eine neue Lokalisierung.





























