LOCATION
The new harbor master's office, a meeting place for visitors and boat renters, is located on the north shore of the city lake in Lychen.
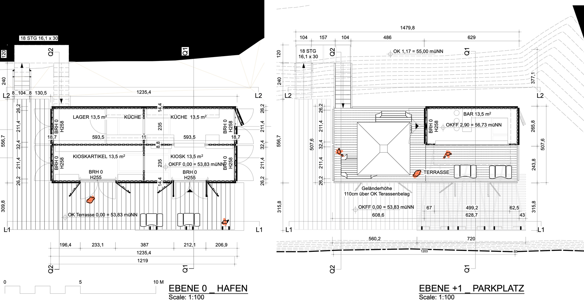
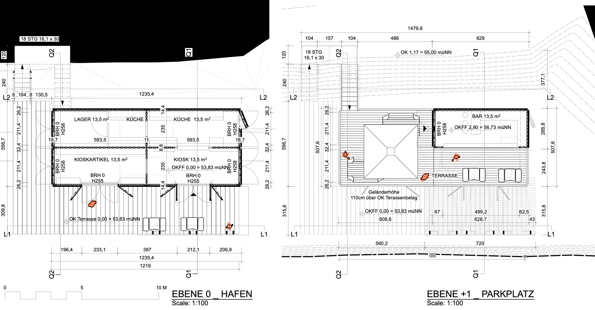
USE
A bistro with a kiosk offers food and items for the daily needs of boaters. Two terraces—the upper one with a small bar—offer an exclusive view of the city lake.
CONSTRUCTION
Five used high-cube shipping containers with a curtain wall facade made of wood form the supporting structure of the building.
A wooden structure consisting of three V-supports and V-beams with wooden slats covers the terraces and also provides permanent sun protection.
RE-USE, C2C
For the harbor master's office, most of the used elements were converted and reused. Connections between the components, including the foundations, can be easily and non-destructively detached. The structure can be dismantled at the end of its useful life and rebuilt elsewhere. The building is founded on 26 reusable foundation screws.
ORT
Am Nordufer des Stadtsees in Lychen befindet sich die neue Hafenmeisterei, Treffpunkt für Besucherinnen und Bootsmieter.
NUTZUNG
Ein Bistro mit Kiosk bietet Verpflegung und Artikel für den täglichen Bedarf der Anleger. Von zwei Terrassen – die obere mit einer kleinen Bar – hat man einen exklusiven Blick über den Stadtsee.
KONSTRUKTION
Fünf gebrauchte High-Cube-Seecontainer mit einer vorgehängten Fassade aus Holz bilden die tragende Konstruktion des Gebäudes.
Eine Holzkonstruktion bestehend aus drei V-Stützen und V-Trägern mit Holzlamellen überdeckt die Terrassen und ist gleichzeitig permanenter Sonnenschutz.
RE-USE, C2C
Für die Hafenmeisterei wurden zum großen Teil gebrauchte Elemente umgebaut und neu genutzt. Verbindungen der Bauteile inklusive der Fundamente lassen sich einfach und zerstörungsfrei lösen. Die Konstruktion kann nach Nutzungsende zerlegt und an anderer Stelle wieder aufgebaut werden. Das Gebäude ist auf 26 wieder verwendbaren Fundamentschrauben gegründet.










































